
803 Gemini, 714-718 Space Way, Duncanville, TX 75137


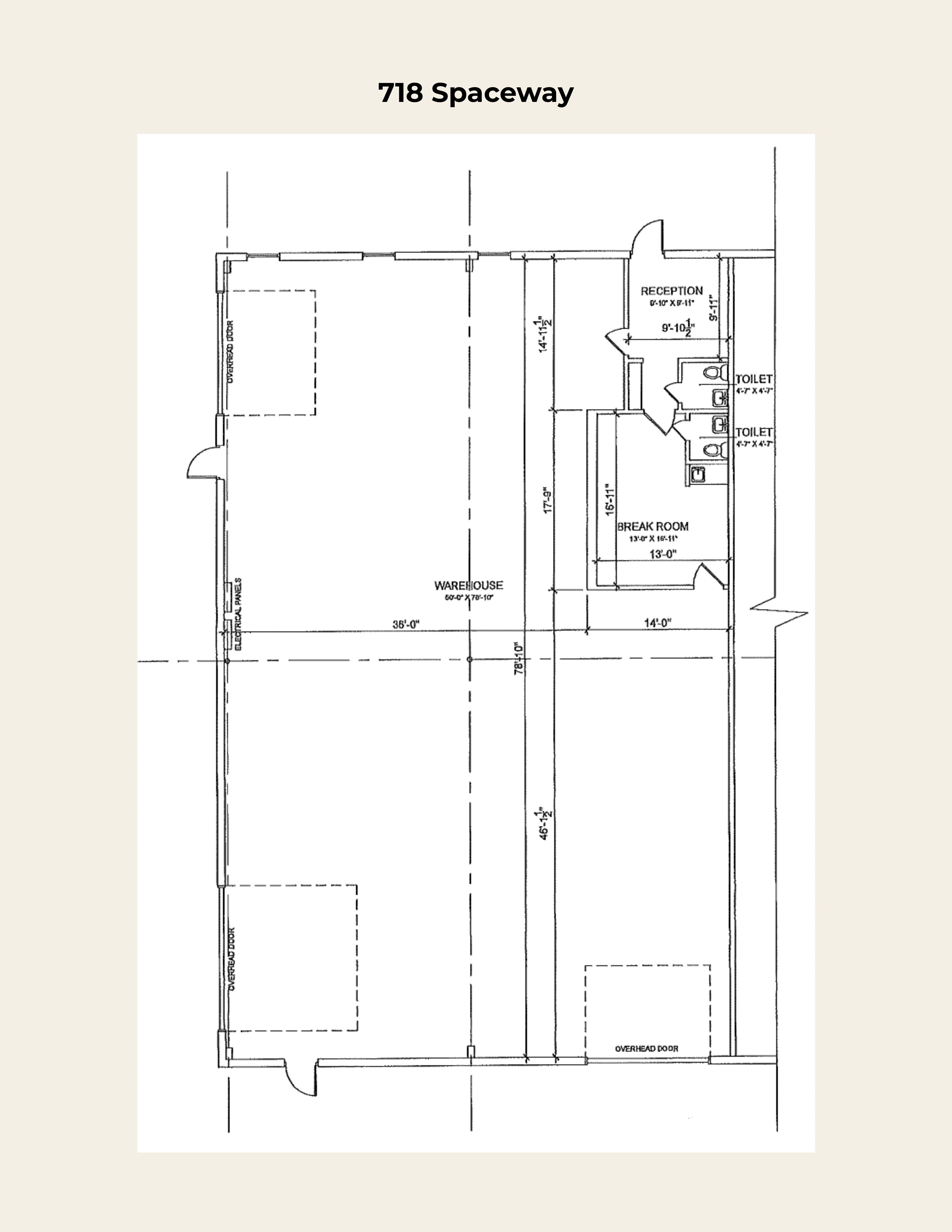
This well-located light industrial property in the Duncanville submarket of South Dallas offers flexible warehouse and office space, available for lease at $2,350–$2,550 per month. Situated on a 0.64-acre lot, the 12,000 SF building was constructed in 1982 and is zoned LI (Light Industrial), making it ideal for a variety of operational uses.
SEE SPACES FOR LEASE

This property offers an efficient balance of office and warehouse space in a strategic South Dallas location, well-suited for businesses seeking accessibility, functionality, and value.

Strategically located industrial asset adjacent to established residential and retail areas. Excellent regional access with close proximity to US-67, I-35E, I-45, I-20, and Loop 12
Zoned Light Industrial, the space supports a wide range of business uses and operational needs. A grade-level overhead door provides ease of loading and unloading, while recently updated features enhance overall functionality and appeal.

